Miercuri 17 Decembrie

Parcul Tineretului - Pădurea Clujenilor: Au început lucrările la noul parc. Unde este amplasat


Primăria Cluj-Napoca anunță că a fost dat ordinul de începere a lucrărilor pentru Parcul Tineretului - Pădurea Clujenilor.

Vineri, 19 iulie, Primăria Cluj-Napoca a dat ordinul de începere a lucrărilor de proiectare și execuție pentru Parcul Tineretului - Pădurea Clujenilor. 

Contractul de proiectare și execuție a proiectului a fost câștigat de către asocierea SC Nord Conforest SA - Proiect Construct Regiunea Transilvania SRL. Valoarea contractului este de 15.987.325,64 lei fără TVA din care: 326.200 lei fără TVA pentru servicii de proiectare și asistență tehnică, iar 15.661.125,64 lei fără TVA valoarea aferentă execuției lucrărilor.

Termenul de proiectare a proiectului este de 90 de zile și termenul de execuție este de 19 luni.

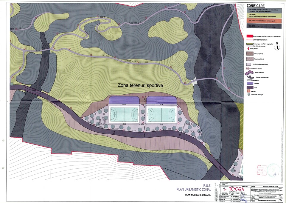
Pădurea Clujenilor - Parcul Tineretului se va extinde pe o suprafață de 213.004 mp și va fi un parc recreativ, un loc pentru petrecerea timpului liber, ideal pentru a explora natura, mediul înconjurător și viitoarea faună care se va instala în cadrul eco-sistemului nou creat.

Locația aleasă pentru amenajarea viitorului parc este pe B-dul Muncii f.n., teren în proprietatea municipiului Cluj-Napoca, în spatele proprietăților amplasate între Str. Voroneț - Bvd. Muncii nr. 239 și după proprietatea de la adresa - Bvd. Muncii nr. 249.

Parcul va avea următoarele categorii de spații:

- plantații pentru stabilizarea solului;

- masive de arbori și zone de poiană;

- zone decorative pentru activitatea densă - zone de interes cu mobilier urban;

- zona de taluzuri - arbuști târâtori, graminée decorative și arbuști decorativi;

- zona de gradină urbană;

- zona cu facilități sportive.

Parcul va dispune de facilități pentru persoane cu dizabilități, locuri de parcare și iluminat nocturn în parcări și pe aleea principală. De asemenea, sunt prevăzute și parcări pentru biciclete și stații de încarcare pentru biciclete si trotinete electrice.

Principalele lucrări pentru realizarea proiectului sunt: plantarea vegetației, lucrări de relocare/protecție a utilităților și asigurarea utilităților necesare obiectivului. 

Valoarea totală a investiției este de 22.861.202,24 lei, din care 21.632.046,20 lei sunt fonduri nerambursabile. Proiectul este finanțat prin fonduri europene, în cadrul Programului Operaţional Regional 2014-2020, Axa prioritară 4 - Sprijinirea dezvoltării urbane durabile, Os - 4.2. Reconversia și refuncționalizarea terenurilor și suprafețelor degradate, vacante sau neutilizate din municipiile reședința de județ.

Pe locația respectivă, Arpad Paszkany a promis acum 10 ani că va face Cartierul Tineretului, dar criza a ucis planurile. Terenul a trecut prin litigii și acum va fi transformat în parc. 

Untitled.png

67082675_2397055393716605_1458519805085614080_n.jpg

Comentarii Facebook