Clujul cumpără Palatul Telefoanelor. Ce sumă fabuloasă se plătește pentru achiziție din bugetul municipiului Cluj-Napoca
Cluj-Napoca achiziționează „Palatul Telefoanelor" : Hotărâre a Consiliului Local pentru preluarea monumentului istoric cu cu 3,23 milioane de euro
Consiliul Local al Municipiului Cluj-Napoca, se va întruni în ședință extraordinară în 7 noiembrie 2025, pentru a aproba cumpărarea imobilului istoric cunoscut sub numele de „Palatul Telefoanelor”, situat pe strada Octavian Petrovici nr. 2, la prețul final de 3.230.000 de euro.
Achiziția va fi realizată ca urmare a exercitării dreptului de preempțiune de către Municipalitate, decizie inițiată anterior prin Hotărârea nr. 574/2025. Imobilul este clasificat drept monument istoric/sit arheologic, având codul monument CJ-II-m-B-21175, conform Ordinului Ministrului Culturii nr. 889/28.07.2005.
Detalii tranzacționale și de proprietate asupra imobilului Palatul Telefoanelor
Imobilul este înscris în Cartea Funciară (C.F. nr. 262613 Cluj-Napoca) și este compus dintr-un teren de 715 mp și o construcție principală (C1) cu o suprafață construită la sol de 574 mp, având un regim de înălțime de S+P+4E+E tehnic (Subsol + Parter + 4 Etaje + Etaj tehnic). De asemenea, în tranzacție este inclusă și construcția C2, neintabulată, având destinația de grup electrogen, care urmează să fie vândută ca bun mobil.
Prețul de achiziție, stabilit la 3.230.000 Euro, se va plăti în echivalent lei, calculat la ultimul curs de vânzare EUR/RON pentru persoane juridice al ING Bank N.V. Amsterdam – Sucursala București din ziua lucrătoare anterioară emiterii facturii proforma. Consiliul Local a aprobat, de asemenea, acoperirea de către Municipiul Cluj-Napoca a cheltuielilor aferente încheierii contractului de vânzare-cumpărare în formă autentică.
Procesul de Negociere și Evaluare
Prețul final a fost rezultatul negocierii purtate de o Comisie mixtă special constituită, conform Procesului-verbal final de negociere nr. 835275, înregistrat la 31.10.2025. Procesul de negociere a avut la bază și un Raport de evaluare (nr. NCV 4445/17.09.2025), întocmit de evaluatorul autorizat ANEVAR, S.C. Neoconsult Valuation S.R.L.
În cazul în care hotărârea va fi adoptată de consilierii locali din Cluj-Napoca, implementarea prevederilor Hotărârii va reveni Direcției Patrimoniului municipiului și evidența proprietății, Direcției Economice și Direcției Juridice.
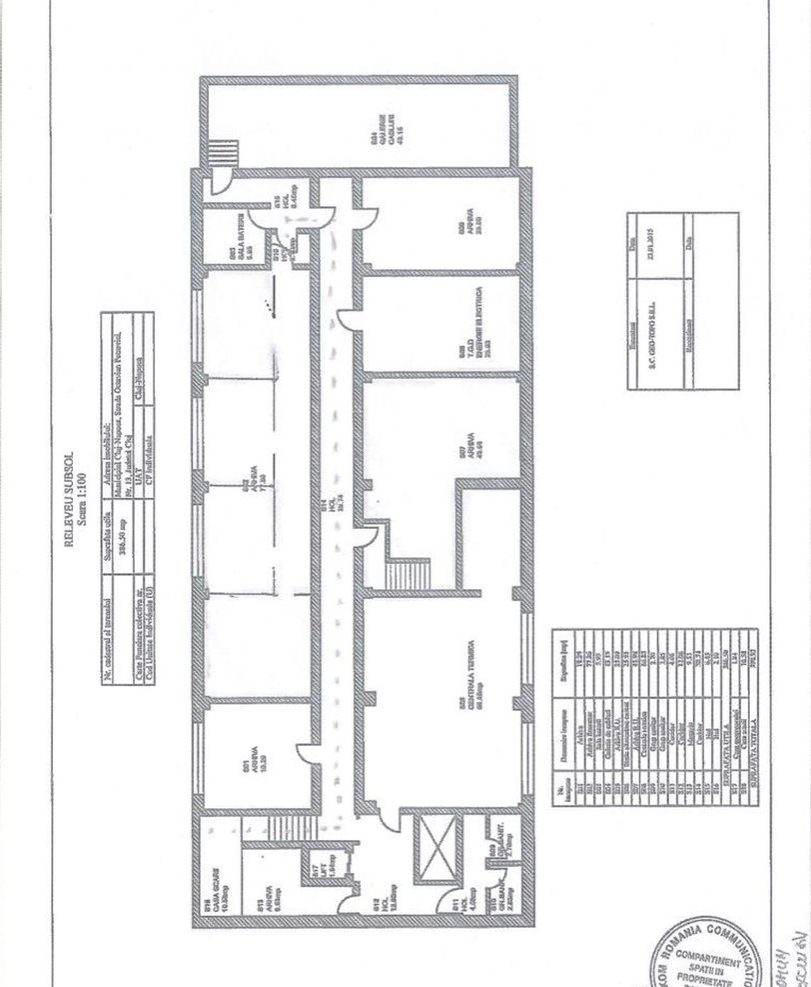
Structura și spațiile Imobilului Palatul Telefoanelor
-
Subsol (386.22 mp SU): 7 spații tehnice, centrală termică, holuri, casă scării, vestiar, arhivă.
-
Parter (401.56 mp SU + 60 mp trafic): Hol telefoane, birouri, spațiu comercial, windfang, registratură, grup sanitar, și un post trafo de 60 mp.
-
Etaj 1 (404.61 mp SU): Include birouri (operare teren, juridic, audit, financiar, imobiliare, achiziții), sală de ședințe, sală transmisii și cameră plotter.
-
Etaj 2 (396.28 mp SU): Conține birouri (secretariat, director, resurse, personal, asistenți), chicinetă, sală ședințe, sală echipament RTC și centru T.C.
-
Etaj 3 (404.87 mp SU): Găzduiește săli colacare, CSP, cameră HARD/IT, sală echipamente RTL, cameră server și birouri suport.
-
Etaj 4 (404.87 mp SU): Include birouri (audit, juridic, resurse umane, administrativ, Real Estate, achiziții), un spațiu de repaus și spațiu tehnic.
-
Etaj Tehnic (48.28 mp SU): Cu depozit, casă troliu și coridor.


6 Comentarii